BA / K3

Popis
Rekonštrukcia bytu v Starom meste
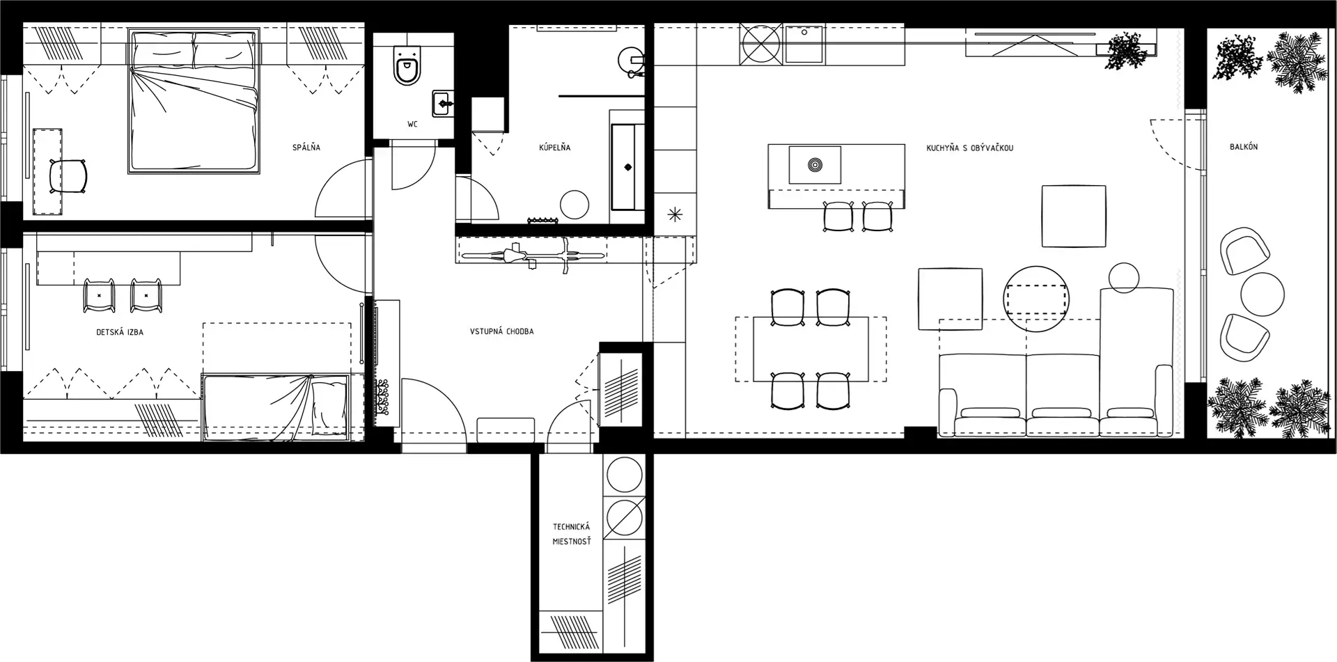
Návrh a realizácia trojizbového bytu v srdci Bratislavy dostal už pri úvodnom stretnutí jasný charakter. Majitelia, športovo založená rodina si priala mať po ruke miesto na odloženie bicyklov. Túto nenápadnú požiadavku a ich vášeň pre šport sme pretvorili do charakteru a atmosféry ich nového bývania.
Vo veľkorysej vstupnej chodbe sme vytvorili priamo oproti vstupným dverám galerijný priestor na zavesenie bicyklov. Tento odvážny prvok vytvoril celkom spoľahlivo „wau efekt“. Podporili sme ho osvetlením a štandardným vybavením predsiene - minimalistickým botníkom, kruhovým zrkadlom a dverami s netradičnými okrúhlymi svetlíkmi.
Denná časť bytu vsádza na materiálovú jednotu a vizuálnu čistotu. Z chodby plynulo pokračuje drevená stena do ktorej sme integrovali časť kuchyne so spotrebičmi aj akvárium. Biele skrinky prirodzene prepájajú kuchyňu s obývacou zónou. Nadčasovú kombináciu materiálov dopĺňajú kontrastné čierne detaily v podobe barových stoličiek a interiérových doplnkov.
Praktickosť, ako jedna z hlavných priorít klienta, dominuje kúpeľni. Šedý štruktúrovaný obklad dopĺňa priestranný „walk-in“ sprchový kút a veľkorysé dvojumývadlo. Technologickou zaujímavosťou je zrkadlo s integrovanou meteo stanicou, zatiaľ čo uzavretý úložný priestor zabezpečuje poriadok a vizuálny pokoj.
Vzhľadom na rozmery spálne sme zvolili netradičné, no vysoko funkčné umiestnenie šatníka v záhlaví postele. Skrine pôsobia nenápadne a tvoria stabilné zázemie pre manželskú posteľ. Priestor pod oknom sme využili na subtílny pracovný kútik, ideálny pre príležitostný home office.
Cieľom návrhu bolo vytvoriť interiér, ktorý bude materiálovo zjednotený a funkčne prispôsobený dynamickému tempu jeho majiteľov. Aj s minimálnymi stavebnými zásahmi sa nám podarilo vytvoriť autentické bývanie, ktorého jedinečnú atmosféru pocítite už pri prvom kroku do bytu.












